Developers who want to build a Joliet data center held an open house on the project Thursday, ahead of what they hope to be city votes on their plans in March.
More than 120 people attended the three-hour open house at Joliet Junior College, a reflection of the attention the project has drawn.
City votes on the project have been tabled since it was taken off the Plan Commission agenda in October.
But the project could go through the Plan Commission and City Council in a matter of weeks, according to an executive with one of the development companies.
“Right now, it appears we’ll have a Plan Commission meeting on March 5,” said Donald Schoenheider, executive vice president with Hillwood, which is developing the project with PowerHouse Data Centers.
:quality(70)/cloudfront-us-east-1.images.arcpublishing.com/shawmedia/SX6IQRY6G5D57FDXY7LML2DQFA.jpg)
A March 5 meeting would be off the normal schedule for the Plan Commission, which meets on the third Thursday of the month.
But Schoenheider said the city is considering a special meeting for the Plan Commission on the data center plan, which would make it possible for a City Council vote later in the month.
“We’re trying to get it in for March,” Schoenheider said of the prospects for a vote by the City Council, which would have the final say.
City officials on Friday would not confirm or deny that the data center plan will go to the Plan Commission and City Council for votes in March.
Instead, a spokeswoman issued a statement saying in part that the city is “working on a timeline that aligns with the project’s needs while ensuring the city moves forward only when we believe the project is ready and all necessary information has been thoroughly evaluated.”
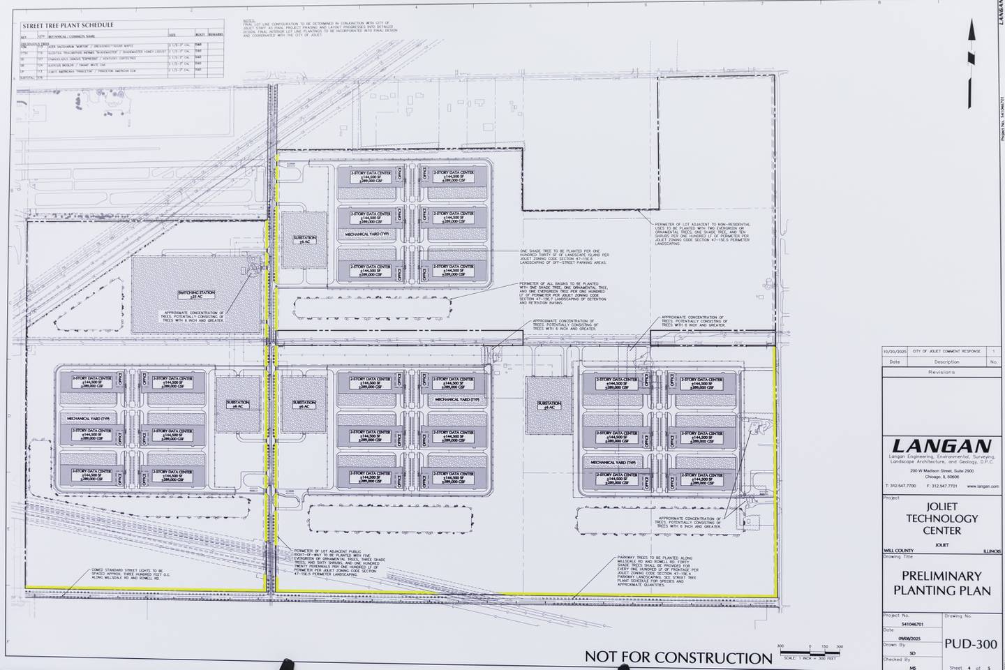
The Joliet Technology Center would be a 795-acre development on what is now farmland in the area of Rowell Avenue and Bernhard Road.
:quality(70)/cloudfront-us-east-1.images.arcpublishing.com/shawmedia/AFXZ2ZZC3RGH5KIXENFZDV5JZI.jpg)
It would be comprised of what a representative from PowerHouse Data Centers at the open house described as “four campuses,” each containing six buildings landscaped on the borders with trees and berms.
Artist renderings on display depicted the future data center campuses looking like ordinary business parks.
The representative from PowerHouse Data Centers said operations would be contained within the buildings.
The PowerHouse Data Centers representative, like others working the display tables at the open house, would not provide her name.
Attendees of the open house were a mix of supporters, opponents and people looking for more information.
:quality(70)/cloudfront-us-east-1.images.arcpublishing.com/shawmedia/XXV6W6IPQ5GMLKUBT2S776NUNM.jpg)
Supporters included workers and officers in the building trades unions, who stand to get thousands of jobs from the project.
Developers say the $20 billion project will create between 7,000 and 10,000 construction jobs over the course of five to seven years of building.
Mark Pavlis, secretary/treasurer with LiUNA Laborers’ Local 75 in Crest Hill, compared the economic impact of the project to the construction of the Braidwood nuclear plant in the 1970s.
“The people who enjoy their high-speed Internet, their cellphone and their televisions, they should be behind this,” Pavils said in reference to the role of data centers in supporting the growth of digital technology.
But data centers also are fueling the growth of artificial intelligence, which has drawn vigorous opposition from younger people who have shown up at City Council meetings for months to object to the Joliet Technology Center.
:quality(70)/cloudfront-us-east-1.images.arcpublishing.com/shawmedia/QTMJY6N64FF4HNEU2LT42FOUAQ.jpg)
“We’re concerned about our job security in the future,” said Mercedes Medina of Plainfield, a JJC student at the open house. “[AI] is taking jobs.”
Opponents argue that the jobs at Joliet Technology Center will disappear once it is up and running.
“I don’t think we’re going to get anything out of this but a handful of jobs, which they’re going to keep the wages down as the cost of living keeps going up,” Justin Burgess said.
Supporters say the Joliet Technology Center will continue to produce jobs when it is in operation.
Schoenheider said the Joliet Technology Center will create more than 700 jobs, mostly in maintaining operations. Those jobs pay $125,000 and up at other data centers, he said.
“I think it’s going to bring a lot of work for a lot of people,” said Jay Jones with Sheet Metal Workers Local 265, which is based in Downers Grove but covers an area that includes Will and Grundy counties.
:quality(70)/cloudfront-us-east-1.images.arcpublishing.com/shawmedia/CTWZFQROR5EITPCKWGQULZOT2I.jpg)
Stations at the open house included information on the impact of the Joliet Technology Center on electric supplies, city water and noise.
According to one display, the data center under normal conditions “will use less water than a single-family residential development.”
ComEd had a station at the open house.
The impact of data centers on the power grid has become a growing issue, and a state report recently said the availability of electricity in the future could be threatened by the increased load.
:quality(70)/cloudfront-us-east-1.images.arcpublishing.com/shawmedia/QU2EHUM75RGRZMNQTMSDGJRDTQ.jpg)
Schoenheider said a ComEd substation would be built with the data center to supply its needs.
Organizers of the open house were “really happy” with the turnout, Schoenheider said.
“We wanted to have an opportunity for commmunity to come and learn about the project,” he said.
Not all attendees were happy with what they heard.
Ethan Backlin said there was “a lot of optimism” and “propaganda.”
“I’m not getting answers on what I’m going to derive as true benefits,” Backlin said.

:quality(70)/s3.amazonaws.com/arc-authors/shawmedia/c957a8ff-14a0-492e-82d7-3c005b3cd732.png)