Peru’s proposed TIF district is now final.
Monday, the Peru City Council passed a series of votes needed to launch the proposed Peru Midwest Industrial Nexus Tax Increment Financing (TIF) District Redevelopment Project Area, Plan and Projects.
“It’s another positive step for economic development,” Mayor Ken Kolowski said. “Things will hopefully come sooner than later.”
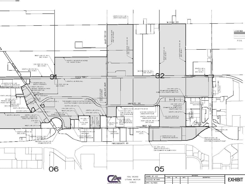
The area in question is generally located north of May Road. Within the district are 42 vacant and improved parcels. Roughly four in five of the parcels qualify as “blighted” under the TIF Act.
The parcels are sprawling but mostly lie between Interstate 80 to the south and North 31st Road to the north, and Route 251 to the east and the Bureau County line to the west.
According to documents on file with the city clerk’s office, Eakas Corp. and James Hardie voice support for the TIF.
In other news:
The city council appears no closer to a consensus on whether to build a swimming pool.
At a Monday committee meeting held before the council meeting, aldermen resumed the discussion with no agreement on whether the city can afford it, whether the advisory referendum yielded reliable results and whether a pool would be redundant with the YMCA’s facility.
No action was taken.

:quality(70)/s3.amazonaws.com/arc-authors/shawmedia/638ad18c-1176-4018-bcef-b5560cf36d58.png)